+5493404630253
En Venta
CASA EN BARRIO RESIDENCIAL! LISTA PARA UN NUEVO SUEÑO!
Código: 197888

Larrechea 125, S2252 Gálvez, Santa Fe, Argentina, Galvez, Santa Fe, Argentina.

USD100.000

Casa
Compartir esta Propiedad

Descripción de la Propiedad

*CONCEPTO:
• CASA EN BARRIO RESIDENCIAL!

*UBICACIÓN:
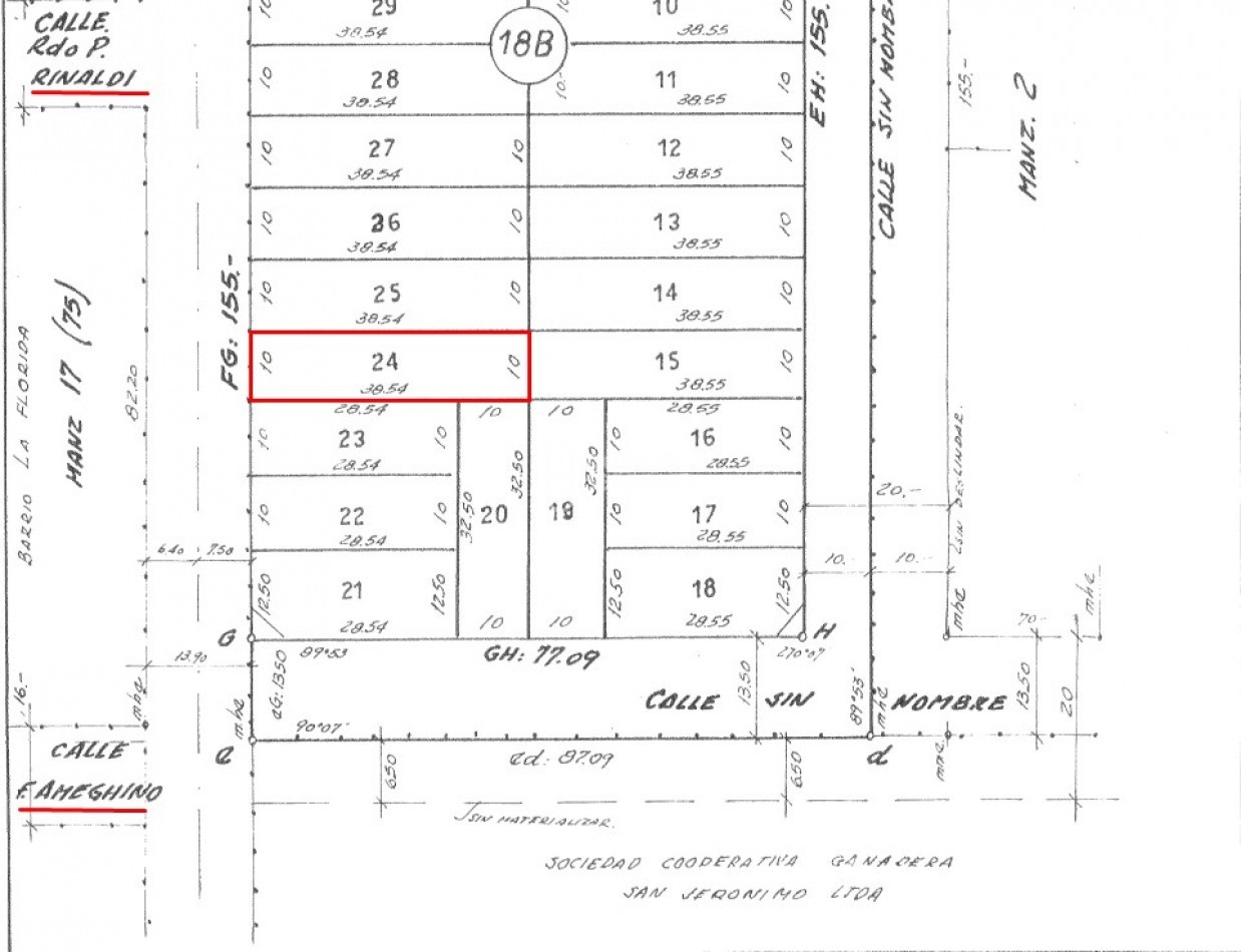
• LARRECHEA 125.
• A mts. de Ameghino.
• Barrio Pedroni.

*SUPERFICIES:
• TOTAL: 385,40 m2.
• EDIFICADA: 243 m2.

*MEDIDAS DE LOTE:
• 10 mts. de Frente x 38,54 mts. de Fondo.

*COMPOSICIÓN/AMBIENTES:
• Planta Baja:
- Patio Frontal.
- Porch.
- Cochera.
- Living.
- Cocina.
- Comedor.
- 2 Baños (uno principal y otro de servicio).
- 2 Dormitorios.
- Corredor y acceso a escalera.
- Galería.
- Lavadero.
- Patio-jardín con parrillero.
- Piscina.

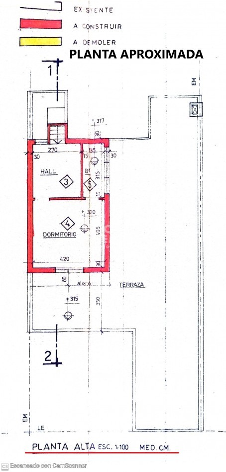
• Panta Alta:
- Hall.
- Dormitorio 3.
- Baño en suite.
- Terraza balconeando a calle.

*SERVICIOS:
• Todos los servicios.

*SE DESTACA:
• Ubicación residencial.
• Ambientes para satisfacer todas las necesidades!
• Estado actual operativo – se trata de una unidad habitada.
• Máximo potencial para modernizaciones.



Mas detalles
Ver video de la propiedad