+5493404630253
En Venta
PARA DISTRUTAR YA! LOPEZ!
Código: 145223

CORRIENTES 1555, LOPEZ, SANTA FE, ARGENTINA, Galvez, Santa Fe, Argentina.

USD80.000

Casa
Compartir esta Propiedad

Descripción de la Propiedad

*CONCEPTO:
• CASA
• PARA DISFRUTAR YA!
• LOPEZ – SANTA FE.

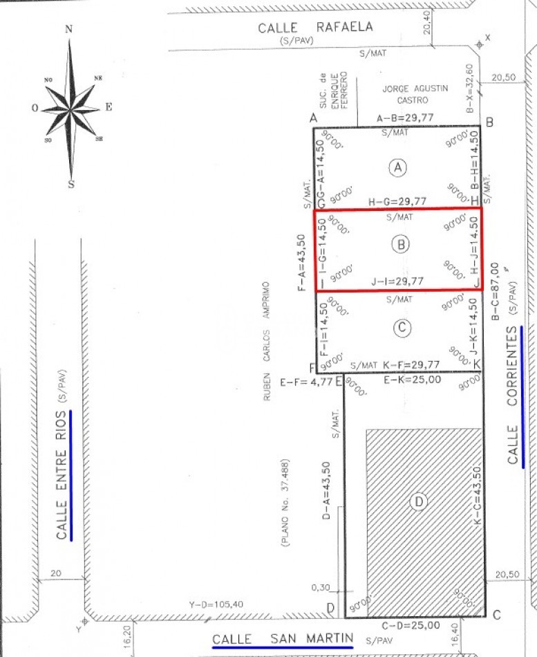
*UBICACIÓN:
• CORRIENTES 1555.
• Entre San Martín y Florentino Bressi / Rafaela.
• Localidad de López – Depto. San Jerónimo. Pcia. de Santa Fe.

*SUPERFICIES:
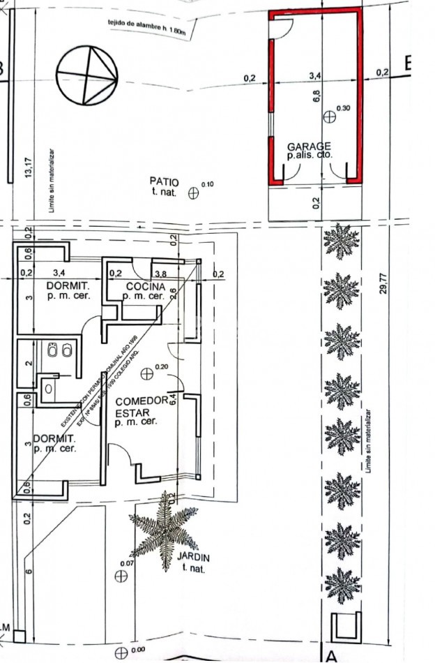
• TOTAL: 431,67 m2.
• CUBIERTA: 116 m2.

*MEDIDAS DE LOTE:
• 14,50 mts. de Frente x 29,77 mts. de Fondo.

*COMPOSICIÓN/AMBIENTES:
• Living- Estar – Comedor.
• Cocina.
• Baño.
• 2 Dormitorios.
• Cochera.
• Patio jardín.

*SERVICIOS: Todos los disponibles en la localidad.

*SE DESTACA:
• Construcción joven y de calidad.
• Estado de mantenimiento excelente.
• Estilo actual.
• Buenas cuotas de aire y luz natural.
• Práctica distribución.

*IDEAL PARA:
-Quién busca comprar para gozar ya de una habitar cómodo y funcional sin tener que realizar ninguna intervención.-

Mas detalles
Ver video de la propiedad